Italiano
English
327.600 €

BERGAMO CENTRALE NUOVO TRILOCALE CON TERRAZZO

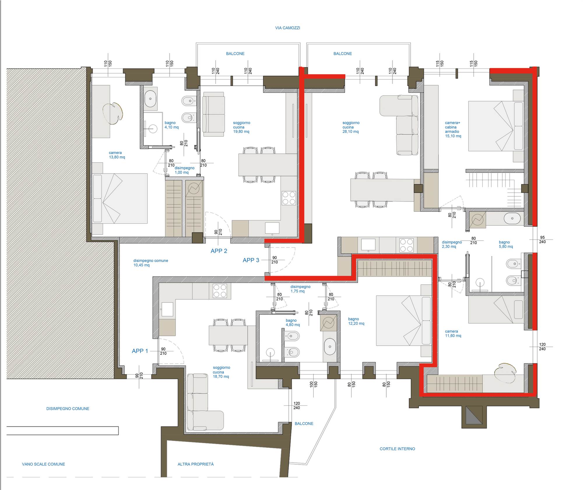
3 locali in vendita • Bergamo (Centrale) - Via Camozzi, 130
Zona centrale, in posizione strategica, nuovi appartamenti monolocali, bilocali e trilocale in totale ristrutturazione con possibilità di scelta delle finiture interne. Classe energetica A1.
Palazzina signorile ben tenuta, con ascensore.
L'appartamento proposto è un ampio trilocale posto a piano terzo, composto da una zona ingresso, luminosa zona soggiorno con angolo cottura e accesso al terrazzo, disimpegno, camera matrimoniale con cabina armadio, seconda camera e bagno finestrato.
Possibilità di apportare eventuali modifiche e scegliere tra le finiture previste a capitolato dell'impresa, di buon livello.
Tapparelle elettriche, impianto VMC, impianto raffrescamento, pavimentazione in SPC di ultima generazione effetto parquet.
Consegna luglio 2026.
Caratteristiche principali
Codice
NV0305
Città
Bergamo (Centrale)
Categoria
3 locali
Prezzo
327.600 €
Locali
2
Camere
2
Bagni
1
Mq
82
Terrazzi
1
mq Terrazzo
4
Piano
3
Classe energetica
A1
81,69 kWh/m²a
Stato Immobile
Nuovo
Grado
Signorile
Posizione
Centro
Panorama
Vista Aperta
Lati Liberi
1
Arredi
Non Arredato
Tipo Soggiorno
Soggiorno
Tipo Cucina
A Vista
Riscaldamento
Conta Calorie
Tipo Riscaldam.
Caldaia
Tipo Impianto
Radiatori
Fonte Energetica
Gas
Acqua Calda
Centralizzata
Raffrescamento
Fan Coil
Infissi
Legno Doppio Vetro
Serramenti
Nuovo
Persiana
Tapparella PVC
Pavim. Giorno
Personalizzato
Pavim. Notte
Personalizzato
Pavim. Cucina
Personalizzato
Pavim. Bagno
Personalizzato

Accessori: Aria Condizionata, Ascensore, Doppi Vetri, Porta Blindata, Tapparelle Elettriche, Video Citofono

Mappa
Via Camozzi 130, Bergamo (BG)
Video
Condividi su
Cookie preference