Italiano
English
1.667 € / mese

LUMINISO UFFICIO DIREZIONALE CON PARCHEGGIO

Ufficio in affitto • Bergamo - Via Ghislandi, 61
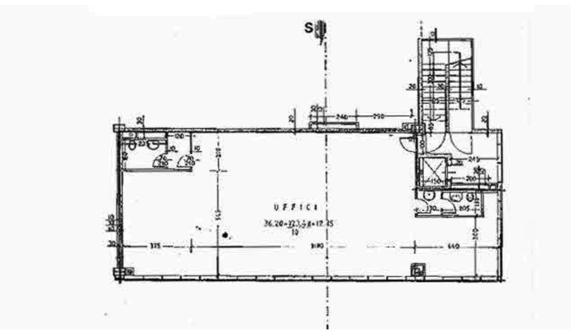
Ampio esclusivo ufficio posto a piano primo servito da ascensore.
In ottimo stato di conservazione, l'ufficio è esposto sulla via Ghislandi, con una facciata a vetri per tutta la sua lunghezza che garantisce ampia luminosità.
Attualmente è suddiviso in cinque ambienti e doppi servizi.
Posizione strategica, in una delle principali via di accesso alla città e a pochi minuti dal centro e dalla circonvallazione.
Servito da Bus di linea e a pochi metri dalla fermata della metropolitana leggera (TEB).
Comodi parcheggi, di cui n.3 posti auto privati completano la proprietà.
Caratteristiche principali
Codice
NA0221
Città
Bergamo
Categoria
Ufficio
Prezzo
1.667 € / mese
Spese condominiali
2.000 € / anno
Locali
5
Bagni
2
Mq
155
Posti auto
3
Piano
1
Classe energetica
D
334,74 kWh/m²a
Stato Immobile
Ottimo
Grado
Signorile
Panorama
Vista Aperta
Orientamento
Nord Ovest Sud
Lati Liberi
3
Arredi
Non Arredato
Riscaldamento
Centralizzato
Tipo Riscaldam.
Ventilconvettore
Tipo Impianto
Aria
Fonte Energetica
Gas
Acqua Calda
Autonoma
Raffrescamento
Fan Coil
Infissi
Alluminio Doppio Vetro
Serramenti
Ottimo
Pavim. Bagno
Ceramica
Pavimento
Moquette

Accessori: Aria Condizionata, Ascensore, Doppi Vetri, Porta Blindata, Video Citofono

Mappa
Via Ghislandi 61, Bergamo (BG)
Condividi su
Cookie preference