English
Italiano
680,000 €

Commercial Premises / Showrooms for sale in Bergamo

Commercial Premises / Showrooms for sale • Bergamo (B.go S. Caterina zona Suardi) - Via Suardi, 32
Primal Features
Code
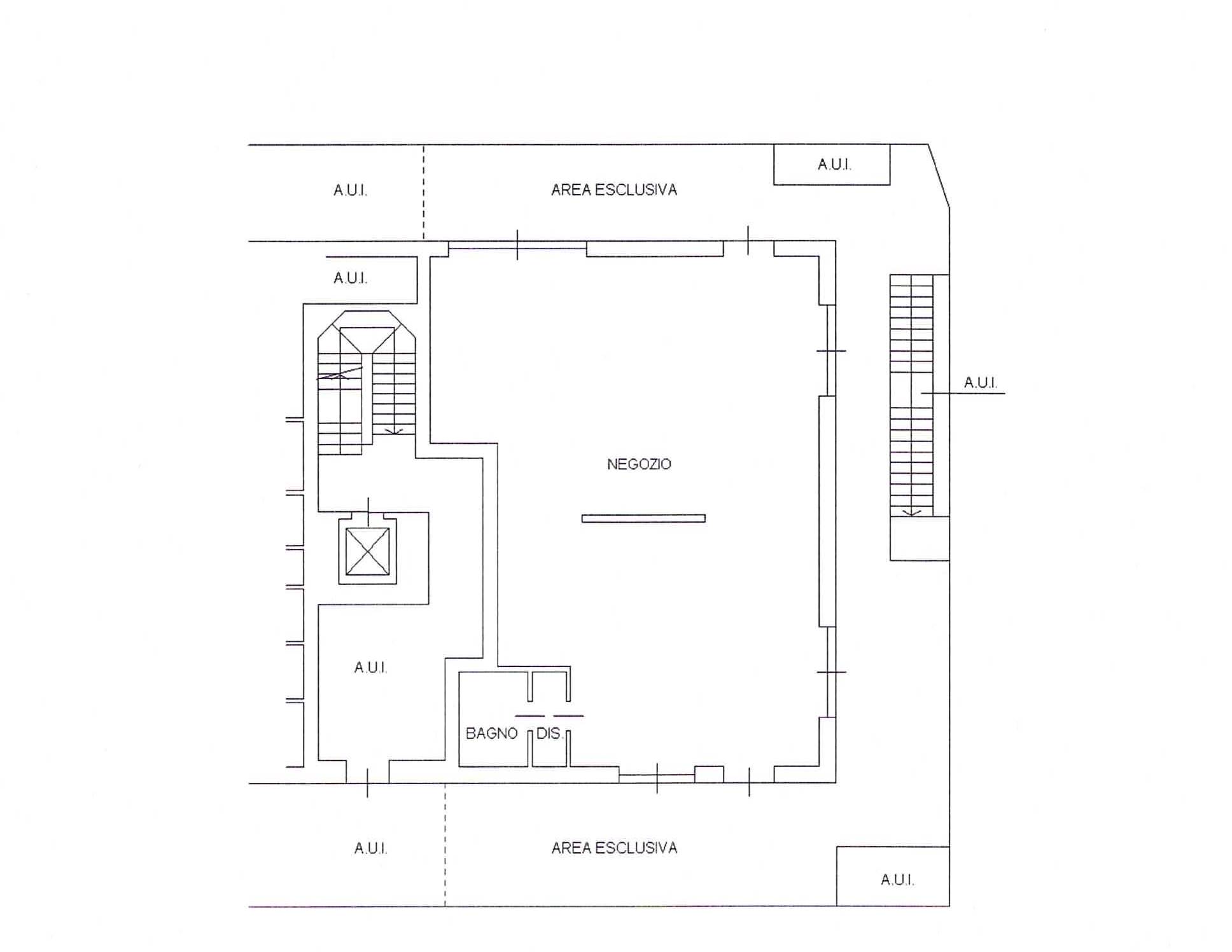
NV0300
City
Bergamo (B.go S. Caterina zona Suardi)
Category
Commercial Premises / Showrooms
Price
680,000 €
Locals
1
Bathrooms
1
Sqm
170
Terraces
1
sqm Terrace
100
Floor
Ground floor
Energetic class
A3
44.24 kWh/m²a
Property Conditions
New
Rank
Elegant
Free Sides
3
Furniture
Not Furnished
Heating
Calories Counter
Heating Type
Tele Heating
Type of heating system
Floor heating
Hot Water
Central
Cooling
Split
Fixtures
Aluminium Double Glazing
Doors
New
Floors Bathroom
Porcelain
Floors
Porcelain
Number of windows
Five or More

Accessories: Air Conditioning, Double Glazing

Map
Via Suardi 32, Bergamo (BG)
Video
Share on
Cookie preference